










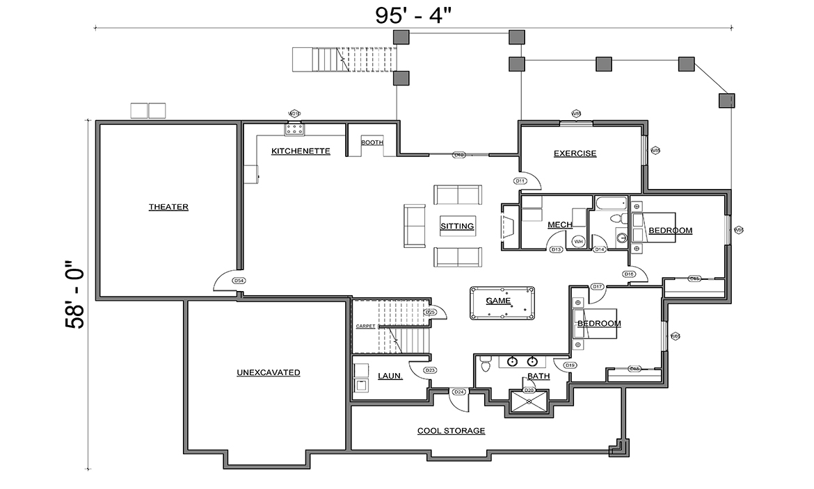
Sq Ft : 10790 sq-ft
Beds : 6
Bath : 6.5
Floor : 3
Garage : 2
PRICE: 250$ – 600$
*** Plan Modification and Up to Three Revisions FREE ***
PROJECT INFORMATION
CODE: PL-49-03-25
PROJECT NAME: Lone Peak Modern Farmhouse House
CONCEPT: Modern Farmhouse
LOCATION: USA
DATE: 1/03/2025
Plan Description
This modern design floor plan is 10790 sq ft and has 6 bedrooms and 6.5 bathrooms.
Area
- Main Floor : 2542 sq/ft
- Basement Floor : 3179 sq/ft
- Second Floor : 1798 sq/ft
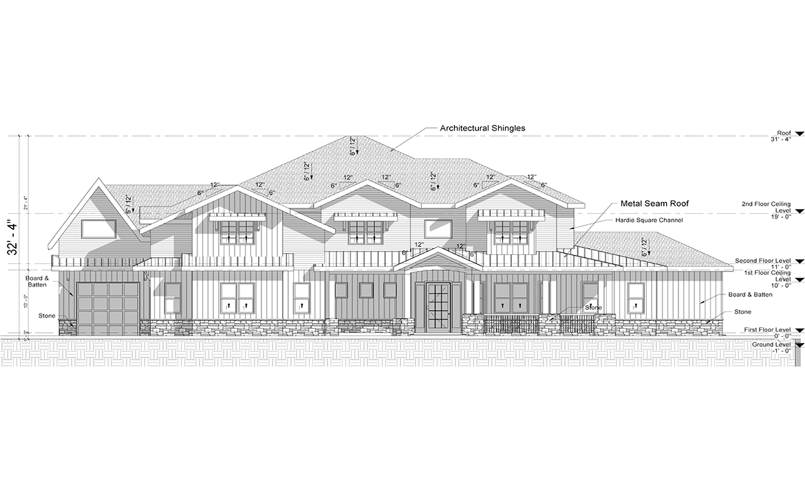
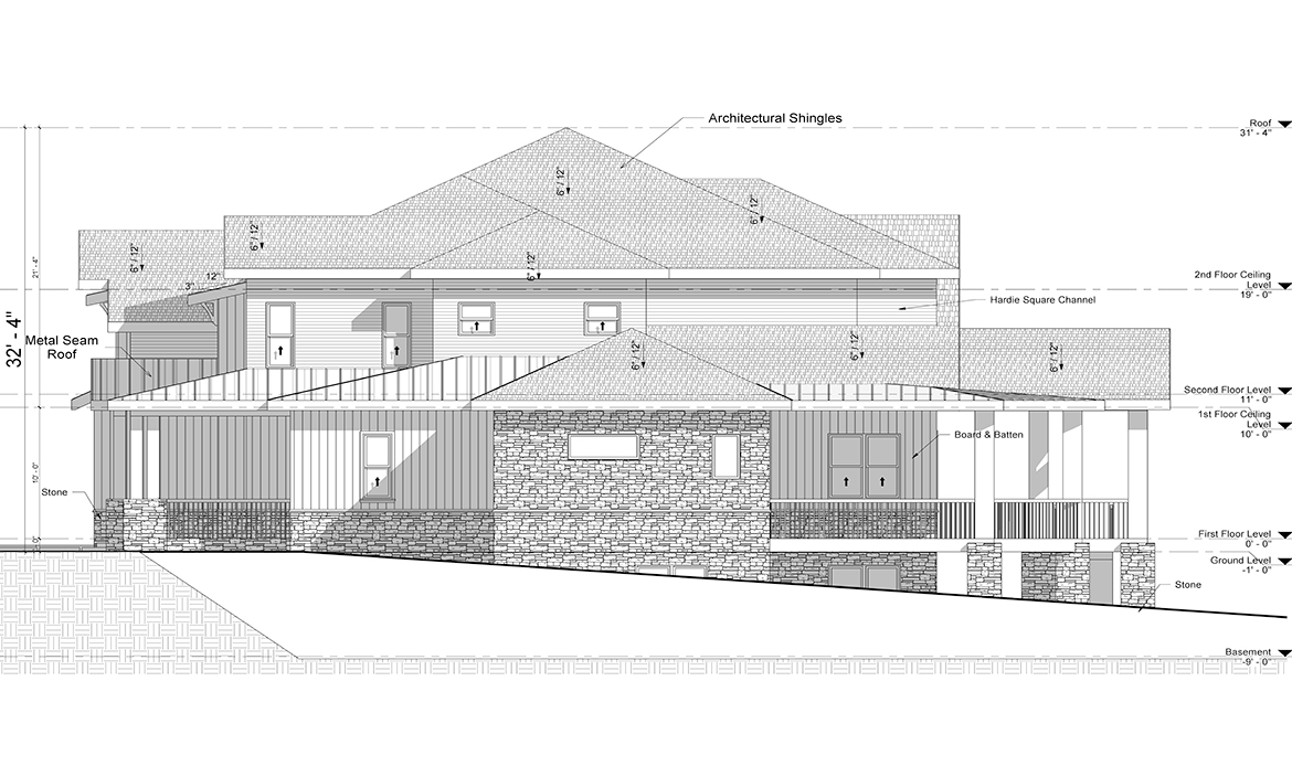
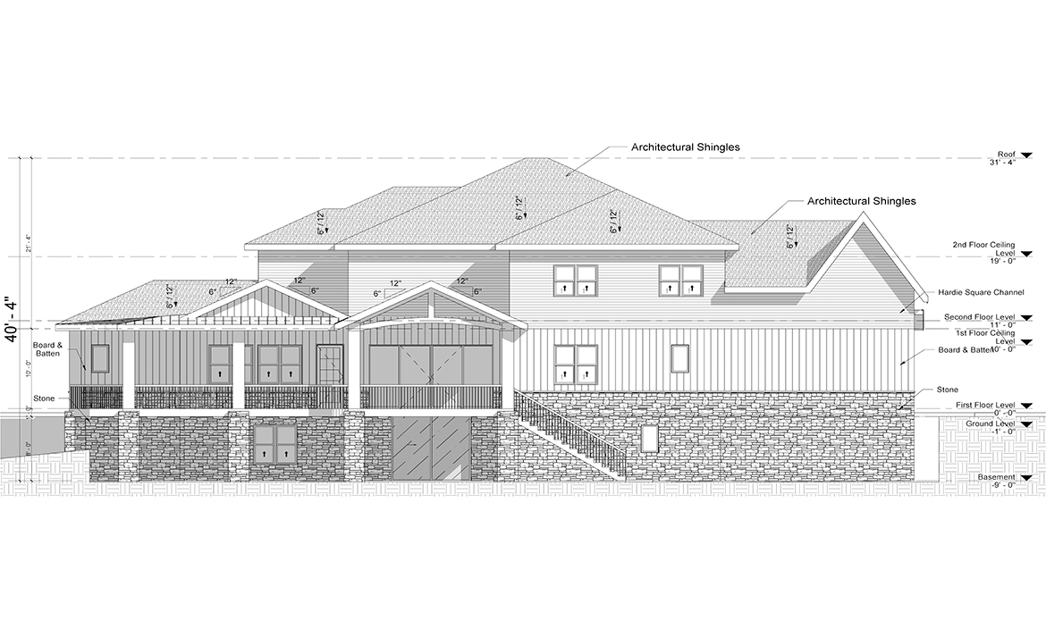
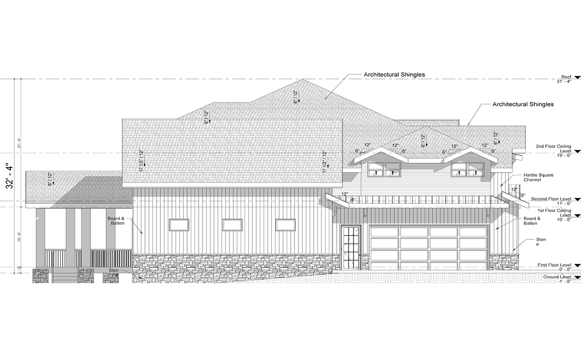
Roof
- Primary Pitch : 6/12"
- Roof Type : Architectural Shingles
What’s Included
Phase One:
- Floor plan with measurements
- Elevations
- Sections
- 3D views
- Roof Plan
- Door and Windows Schedules
- Area Calculation
Phase Two:
- All Phase One Drawings and
- Foundation Plan
- Electrical Plan
- Plumbing Plan
- Typical Wall Sections
- Typical Framing Details
Rendering
- Exterior Rendering:
- Stunning visualizations of building exteriors
- Captures architectural details, materials, and lighting
- Interior Rendering:
- Realistic images of interior spaces
- Showcases furniture, lighting, textures, and color schemes
- Animation/Walkthrough:
- Immersive virtual tours
- Combines exterior and interior renderings for a comprehensive project experience






