









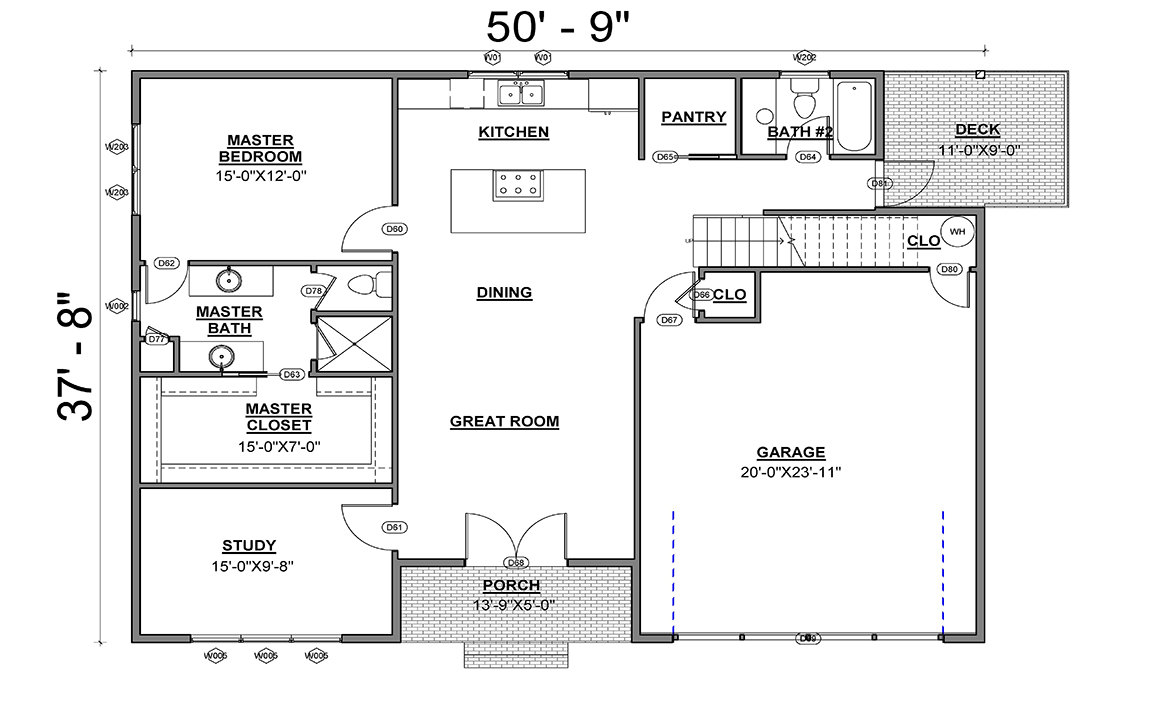
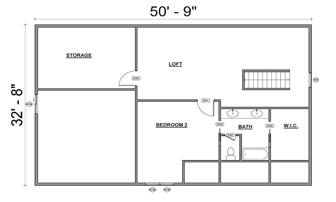
Sq Ft : 3320 sq-ft
Beds : 2
Bath : 3
Floor : 2
Garage : 1
PRICE: 250$ – 600$
*** Plan Modification and Up to Three Revisions FREE ***
PROJECT INFORMATION
CODE: PL-50-03-25
PROJECT NAME: Michael Fullington Modern Farmhouse House
CONCEPT: Modern Farmhouse
LOCATION: USA
DATE: 10/04/2025
Plan Description
This modern design floor plan is 3320 sq ft and has 4 bedrooms and 4.5 bathrooms.
Area
- Main Floor : 1229 sq/ft
- Upper Floor : 1469 sq/ft
Roof
- Primary Pitch : 9/12"
- Roof Type : Architectural Shingle
What’s Included
Phase One:
- Floor plan with measurements
- Elevations
- Sections
- 3D views
- Roof Plan
- Door and Windows Schedules
- Area Calculation
Phase Two:
- All Phase One Drawings and
- Foundation Plan
- Electrical Plan
- Plumbing Plan
- Typical Wall Sections
- Typical Framing Details
Rendering
- Exterior Rendering:
- Stunning visualizations of building exteriors
- Captures architectural details, materials, and lighting
- Interior Rendering:
- Realistic images of interior spaces
- Showcases furniture, lighting, textures, and color schemes
- Animation/Walkthrough:
- Immersive virtual tours
- Combines exterior and interior renderings for a comprehensive project experience






